-
Panier est vide
-
x
Gratuite livraison sont manquants
-,--
Livraison gratuite !
somme
0 €
Le prix comprend les remises

0 €
0
-
Panier est vide
-
x
Gratuite livraison sont manquants
-,--
Livraison gratuite !
somme
0 €
Le prix comprend les remises
-
RADEX OŚCIEŻNICA KRYTA SARA STD WEWNĘTRZNA
Promotion










2059.00
-5%
1956.05
À la fin de la promotion à gauche :
Expédition en | 30 jours |
Prix d'expédition | 950 |
Le code à barres | |
ANASE | 6096438023050 |
Laissez votre téléphone |

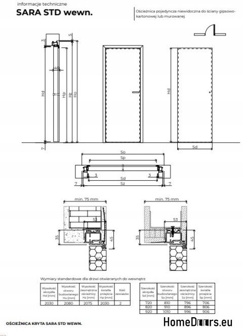
Ościeżnica pojedyncza niewidoczna do ściany gipsowo- kartonowej lub murowanej.
OŚCIEŻNICA KRYTA SARA STD WYMIARY TECHNICZNE


Stan:
Nowy
Marka:
Radex
Minimalna grubość muru:
75
Maksymalna grubość muru:
1000
Il n'y a actuellement aucun commentaire ou notation pour ce produit.