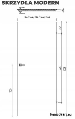
• Cadre